ИННОВАЦИИ БИЗНЕСУ

ПОДРОБНАЯ ИНФОРМАЦИЯ

Заявку на получение дополнительной информации по этому проекту можно заполнить здесь.

Номер

68-134-01

Наименование проекта

Установка для восстановления отверстий

Назначение

Повышение производительности и качества восстановления отверстий

Рекомендуемая область применения

Восстановление отверстий корпусных деталей пластическим деформированием.

Описание

Результат выполнения конструкторской разработки.

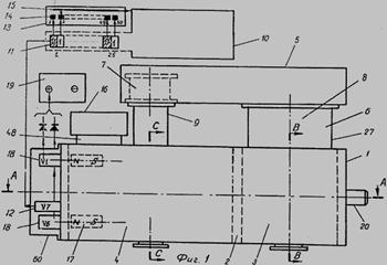
Установка (рис.1) с продольными горизонтальными направляющими 2, закрепленными сверху корпуса 1, устройство 3 для местного нагрева обрабатываемой зоны детали, рабочий деформирующий узел 4 со сменными оправками 5 и 6, устройство 7 для перемещения детали между позициями нагрева и деформирования и гидросистему 8.

Суть способа восстановления отверстий деформированных корпусных деталей на предлагаемой установке заключается в динамическом обжатии разогретой восстанавливаемой детали, уменьшении диаметра отверстий на 0,5-0,6 мм за счет пластической деформации и расточки отверстий в номинальный размер после окончания обжатия и охлаждения детали.

Установка для восстановления отверстий корпусных деталей пластическим

деформированием (общий вид).

Преимущества перед известными аналогами

Установка позволяет снизить металлоемкость и повысить производительность устройства для восстановления отверстий

Стадия освоения

Опробовано в условиях опытной эксплуатации

Результаты испытаний

Технология обеспечивает получение стабильных результатов

Технико-экономический эффект

Улучшение качества изделий на 30-40%; повышение производительности труда в 2 раза. Повыш

Возможность передачи за рубеж

Возможна передача за рубеж

Дата поступления материала

21.11.2001

Инновации и люди

У павильонов Уральской выставки «ИННОВАЦИИ 2010» (г. Екатеринбург, 2010 г.)

Мероприятия на выставке "Инновации и инвестиции - 2008" (Югра, 2008 г.)

Открытие выставки "Малый бизнес. Инновации. Инвестиции" (г. Магнитогорск, 2007 г.)

Демонстрация разработок на выставке "Малый бизнес. Инновации. Инвестиции" (г. Магнитогорск, 2007 г.)