ИННОВАЦИИ БИЗНЕСУ

ПОДРОБНАЯ ИНФОРМАЦИЯ

Заявку на получение дополнительной информации по этому проекту можно заполнить здесь.

Номер

78-015-01

Наименование проекта

Вибрационный валец катка

Назначение

Повышение надежности и расширения области применения уплотнительного катка

Рекомендуемая область применения

Уплотнение дорожных покрытий, оснований и грунта при строительстве дорог

Описание

Результат выполнения конструкторской разработки.

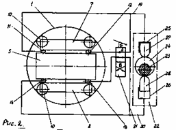
На рис. 1 изображено продольное сечение вибрационного вальца, на рис.2 - гидравлическая схема вальца.

Вибрационный валец катка состоит из вальца 1, установленного на подшипниках 2 на полых цапфах 3, закрепленных одним концом через амортизаторы 4 на балласте 5, а другим - на раме 6. Между вальцом 1 и балластом 5 установлены верхняя 7 и нижняя 8 каретки, на осях 9 которых закреплены с возможностью вращения ролики 10, а между верхней 7, нижней 8 каретками и балластом 5 установлены предварительно поджатые эластичные гидравлические камеры 11, 12, 13 и 14, с одного конца заглушенные пробками 15 и 16, а с другого конца через штуцеры 17 и 18 соединенные трубопроводами 19 и 20 через двухпозиционный гидравлический распределитель 21 с гидравлическим пульсатором 22, включающим вал 23 с эксцентриком 24 и гидроцилиндры 25 и 26 с поршнями 27 и 28.

Вибрационный валец катка работает следующим образом.

При движении катка валец 1 перекатывается по уплотняемому материалу. Вибрационный механизм катка может работать в двух режимах: в режиме направленных вертикальных колебаний и в режиме осциллирующих (крутильных) колебаний.



Вибрации вальца осуществляются посредством расширения/сжатия предварительно поджатых эластичных гидравлических камер давлением рабочей жидкости, за счет чего происходят перемещения верхней и(или) нижней кареток, которые толкают роликами валец, заставляя его тем самым совершать колебания относительно балласта.







Преимущества перед известными аналогами

Позволяет уплотнять асфальтобетонные покрытия, грунты и материал оснований различной толщины

Стадия освоения

Опробовано в условиях опытной эксплуатации

Результаты испытаний

Технология обеспечивает получение стабильных результатов

Технико-экономический эффект

Снижение трудоемкости на 10%

Возможность передачи за рубеж

Возможна передача за рубеж

Дата поступления материала

13.01.2001

Инновации и люди

У павильонов Уральской выставки «ИННОВАЦИИ 2010» (г. Екатеринбург, 2010 г.)

Мероприятия на выставке "Инновации и инвестиции - 2008" (Югра, 2008 г.)

Открытие выставки "Малый бизнес. Инновации. Инвестиции" (г. Магнитогорск, 2007 г.)

Демонстрация разработок на выставке "Малый бизнес. Инновации. Инвестиции" (г. Магнитогорск, 2007 г.)