ИННОВАЦИИ БИЗНЕСУ

ПОДРОБНАЯ ИНФОРМАЦИЯ

Заявку на получение дополнительной информации по этому проекту можно заполнить здесь.

Номер

68-069-01

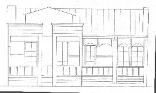
Наименование проекта

Индивидуальный одноэтажный жилой дом с террасой

Назначение

Для проживания и отдыха одной семьи.

Рекомендуемая область применения

Для строительства в городах и сельской местности.

Описание

Результат выполнения конструкторской разработки.

Дом включает в себя подвал, где размещены котельная, мастерская, сауна и кладовые.

Помещения первого этажа; большая прихожая, три спальни, кухня столовая, санузел, терраса.

Фундаменты-сборные железобетонные плиты.

Стены из красного кирпича.

Перекрытия-сборные железобетонные плиты.

Кровля- оцинкованная кровельная сталь.

Водоснабжение, элекроснабжение, газоснабжение-от местных коммуникаций.

Преимущества перед известными аналогами

Высокий уровень комфорта обусловленный расположением гостиной, пространственно объединеный с кухней-столовой.

Стадия освоения

Внедрено в производство

Результаты испытаний

Соответствует технической характеристике изделия (устройства)

Технико-экономический эффект

Для строительства дома используются местные строительные материалы, что позволяет сократить сроки и стоимость строительства 4%.

Возможность передачи за рубеж

Возможна передача за рубеж

Дата поступления материала

30.05.2001

Инновации и люди

У павильонов Уральской выставки «ИННОВАЦИИ 2010» (г. Екатеринбург, 2010 г.)

Мероприятия на выставке "Инновации и инвестиции - 2008" (Югра, 2008 г.)

Открытие выставки "Малый бизнес. Инновации. Инвестиции" (г. Магнитогорск, 2007 г.)

Демонстрация разработок на выставке "Малый бизнес. Инновации. Инвестиции" (г. Магнитогорск, 2007 г.)