ИННОВАЦИИ БИЗНЕСУ

ПОДРОБНАЯ ИНФОРМАЦИЯ

Заявку на получение дополнительной информации по этому проекту можно заполнить здесь.

Номер

47-006-00

Наименование проекта

Яма для сбора дождевой воды

Назначение

Сбор дождевой воды

Рекомендуемая область применения

Полив плодово-овощных культур

Описание

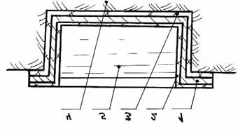
Состоит из прорезиненной ткани 1 (см. рисунок), верхней полиэтиленовой пленки 2, нижней полиэтиленовой пленки 3, котлована 4. Вода 5 в яме изображена условно. В земле выкапывают котлован и накрывают его полиэтиленовой пленкой. На эту пленку накладывают прорезиненную ткань, которую покрывают полиэтиленовой пленкой. Торцы полиэтиленовой пленки прочно укрепляют на поверхности грунта прижимным гнетом. В период дождей образуются сточные воды, которые заполняют яму и хранятся в ней длительное время. Дождевую воду используют для полива.



Преимущества перед известными аналогами

Наличие пленочной защиты, не пропускающей воду через стенки

Стадия освоения

Внедрено в производство

Результаты испытаний

Соответствует технической характеристике изделия (устройства)

Технико-экономический эффект

Снижение трудоемкости полива

Возможность передачи за рубеж

За рубеж не передаётся

Дата поступления материала

15.12.1999

Инновации и люди

У павильонов Уральской выставки «ИННОВАЦИИ 2010» (г. Екатеринбург, 2010 г.)

Мероприятия на выставке "Инновации и инвестиции - 2008" (Югра, 2008 г.)

Открытие выставки "Малый бизнес. Инновации. Инвестиции" (г. Магнитогорск, 2007 г.)

Демонстрация разработок на выставке "Малый бизнес. Инновации. Инвестиции" (г. Магнитогорск, 2007 г.)