ИННОВАЦИИ БИЗНЕСУ

ПОДРОБНАЯ ИНФОРМАЦИЯ

Заявку на получение дополнительной информации по этому проекту можно заполнить здесь.

Номер

24-264-00

Наименование проекта

Насосная станция

Назначение

Питание гидроприводов стационарных лесозаготовительных машин рабочей жидкостью.

Рекомендуемая область применения

При питании стационарных лесозаготовительных машин рабочей жидкостью.

Описание

Результат выполнения конструкторской разработки.

Насосная станция состоит из рамы, гидробака, гидропанели, электродвигателей, насосов.

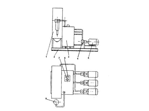
На сварной раме 2 (см.рисунок) установлены сварной гидробак 3, гидропанель 1, выполненная в виде шкафа с дверями, в котором размещается гидроаппаратура для управления рабочими органами лесозаготовительной машины, и электродвигатели 5 с шестеренными насосами 4. В комплект станции входят также линейный фильтр 8, установленный на сливной линии, фильтр-сапун 7, реле контроля уровня жидкости 6 и электронагреватели, смонтированные в гидробаке. Электронагреватели включаются в зимнее время кратковременно и служат для подогрева жидкости перед пуском насосной станции. Реле контроля уровня жидкости отключает электропитание при понижении уровня масла в гидробаке ниже допустимого.

В конструкции насосной станции предусмотрено также ручное переключение одного из насосов для механизированной заливки рабочей жидкости в гидробак, минуя заливочную горловину.

В зависимости от назначения насосной станции и количества питаемых ею гидролиний и рабочих органов в нее устанавливаются один, два или три комплекта «насос-электродвигатель».


Насосная станция

Преимущества перед известными аналогами

Надежна в эксплуатации.

Стадия освоения

Внедрено в производство

Результаты испытаний

Соответствует технической характеристике изделия (устройства)

Технико-экономический эффект

Повышение производительности труда в 2,7 раза.

Возможность передачи за рубеж

Возможна передача за рубеж

Дата поступления материала

12.10.2000

Инновации и люди

У павильонов Уральской выставки «ИННОВАЦИИ 2010» (г. Екатеринбург, 2010 г.)

Мероприятия на выставке "Инновации и инвестиции - 2008" (Югра, 2008 г.)

Открытие выставки "Малый бизнес. Инновации. Инвестиции" (г. Магнитогорск, 2007 г.)

Демонстрация разработок на выставке "Малый бизнес. Инновации. Инвестиции" (г. Магнитогорск, 2007 г.)